理由 1【“产业第一”政策 珠海未来五年工作总抓手】 珠海市第九次党代表大会召开,会上政府提出了今后五年的工作总抓手:产业第一、交通提升、城市跨越、民生为要;“产业第一”排在了第一顺位,珠海将加大产业发展的投资力度,产业周边的物业价值水涨船高,政府政策红利就是投资房产的风向标; 理由2【主城香洲重点“一园一镇” 科技生态城优势凸显】 科技生态城是珠海产业基础实力最雄厚、综合经济实力最前列、龙头企业优势最明显的地区;产业发展将源源不断虹吸更多的高精尖企业和高端人才进驻,支撑起区域内物业的升值和租赁的收益,现在买房就要跟着产业走。 理由3【占位湾区产业黄金内湾 立足珠海城市几何中心】 科技生态城占位湾区产业黄金内湾 ,抢占未来20年湾区产业发展红利;一步横琴一桥港澳,产业经济互联互通,成就湾区西岸科创产业桥头堡; 立足珠海城市的几何中心,临城市中轴珠海大道,往东20分钟直达拱北口岸、往西20分钟直达金湾航空城、往北20分钟直达高新区、往南20分钟直达横琴口岸; 理由4【千亿级产业规模 综合实力居八大园区之首】 产业基础实力最雄厚:产业企业共441家,规上企业169家,2021年新进驻企业54家; 综合经济效益最前列:产业总值破1000亿,单位产值的税收排名八大园区之首; 龙头企业优势最明显:华为、格力等龙头凸显; 已形成一个500亿级,两个百亿级的现代化产业集群,产业虹吸效应正迅速形成; 理由5【①三年!虹吸超37万人口 居住租赁市场爆发】 2025年发展目标:总开发建面2200万㎡、产业生产空间700万㎡、产业就业人口10万人、管理控制人口37万人 理由5【②与500强为邻 承接巨量产业人口居住需求 】 项目周边有多家500强企业,以全球第四的激光打印机厂商为例,与项目一路之隔,厂区员工人数约1万人,若管理人员按占40%计算,再按一半管理人员为无房产,则有居住租赁需求的人才约2000人,需求量巨大; 理由5【③双轨交枢纽中心点 百万人流引爆租赁行情】 往西约5公里直达首个高铁枢纽—珠海中心站(鹤洲枢纽),汇集广珠(澳)高铁、珠肇高铁、广佛江珠城际;往东约3公里直达地铁1号线广生站,连接珠机城轨和广州地铁18号线;
基本信息
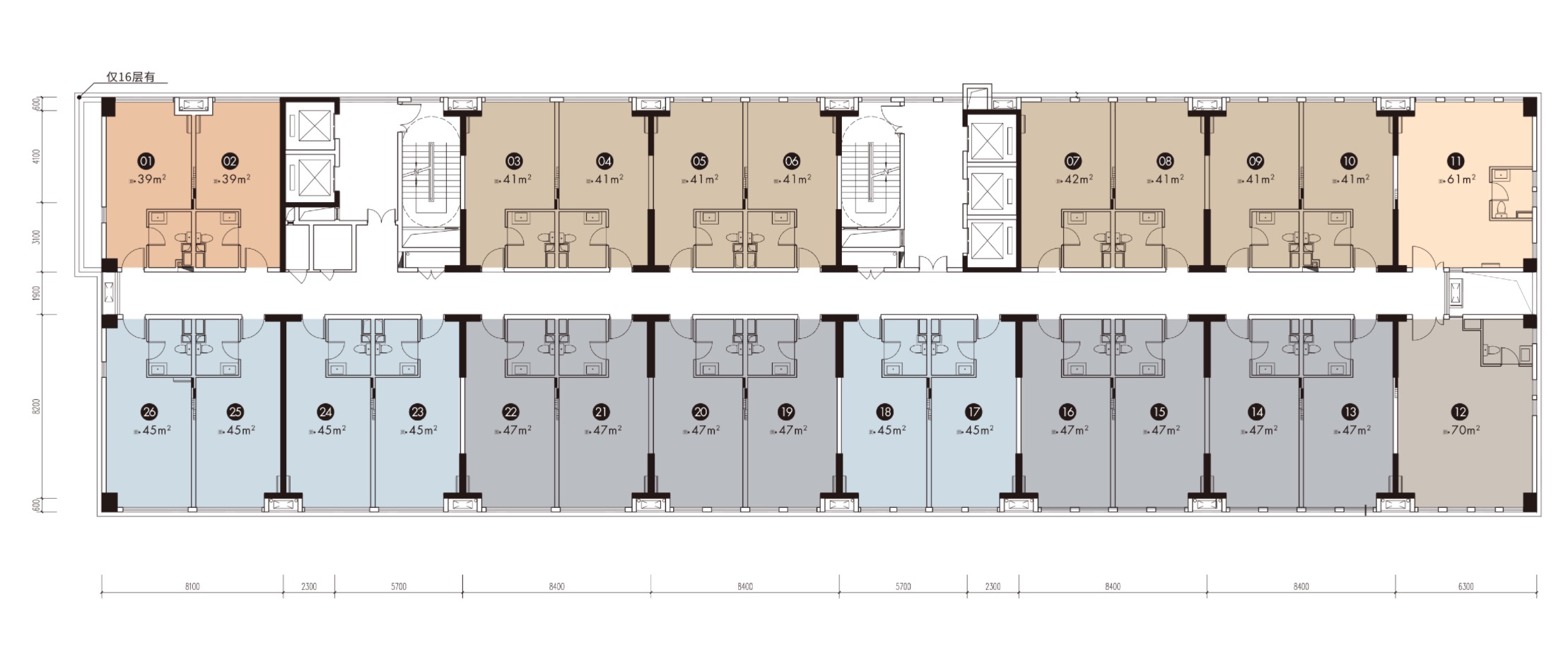
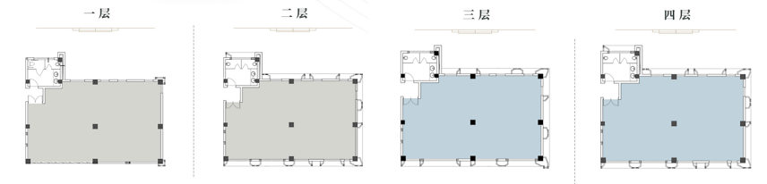
规划信息
配套信息
优选顾问推荐
暂无
暂无
暂无
暂无
暂无

楼盘开盘、降价、优惠等信息,将会在第一时间短信通知您!
置业专家将在2小时内与您联系(8点-23点),请保持电话畅通。
请验证手机号验证码完成提交
置业专家将在2小时内与您联系(8点-23点),请保持电话畅通。
如当前手机号遗失,请联系0755-33526610进行人工修改
如当前手机号遗失,请联系0755-33526610进行人工修改
此楼盘如有优惠/变价通知,我们会及时通知您!
138****8965已经申请
137****8955已经申请
157****4365已经申请
183****8115已经申请
187****5968已经申请
159****8233已经申请